PEIDETUD RAAMIGA UKS Complete PVC Valge’40

Tootja: C

389.00 ei sis. KM

Tootekirjeldus

Ukselingid

Kliki ukselingi peale et näha kõiki selle tüübi valikuid

Peidetud raamiga uks PVC’40

Kvaliteetne Peidetud Raamiga  PVC’40 uks

Peidetud raamiga PVC’uks on täiuslik kombinatsioon funktsionaalsusest ja esteetikast. Meie komplektsed varjatud alumiiniumraamid on kohandatud erinevate paksuste ukseavadega (40, 42 ja 50 mm). Meie Complete-süsteemi raamid võivad olla mitmesugustes viimistlustes – värvimata, hõbedase anodeeritud, valge mattpinnaga või vastavalt soovile mis tahes RAL-värvis. Ukselehe viimistlus võib varieeruda, olenevalt valitud viimistlusest ja paksusest, kasutades kas kärgstruktuuri või puitlaastplaati.

Complete-süsteemi valik pakub laias valikus viimistluseid ukselehtedele, olgu selleks seina värv või RAL-lakk. Uksed on varustatud tarvikutega, mis sobivad suurepäraselt valitud värvidega ning ukselingid on kvaliteetselt valmistatud tuntud Itaalia ettevõtte poolt.

See toode sisaldab mitmeid olulisi omadusi:

  • Varjatud plastikust ukseraam, mis võimaldab seinavärvi kohandamist
  • 40 mm paksune ukseleht, täidetud kas kärgstruktuuri või täismassilise MDF-plaadiga, kaetud keskkonnasõbraliku CPL-ökoloogilise laminaadiga
  • Valik kahe värvitooni vahel: valge või must
  • Raami konstruktsioon on kerge ja samas stabiilne
  • Kahe varjatud hingedega AN 140 3D Anselmi firmalt Simonswerk
  • Magnetlukk Bonaiti kroom-satiin viimistlusega
  • Hall või valge tihend, mis on täiuslikult sobitatud ukseraamiga
  • Valikuline võimalus lisada Itaalia disainiga käepide
  • STANDARDVALIK: UKSE LEHE VÄLISKÕRGUS. 2020/INTEGREERITAV. 2030 mm

Meie Peidetud Raamiga PVC’uks on loodud vastama kõrgetele standarditele nii funktsionaalsuses kui ka disainis. Lisaks saate valida erinevate lisavõimaluste vahel, et luua just teile sobiv ustelahendus. Olge kindel, et meie toode on vastupidav ja vastab teie ootustele.

Tehniline kirjeldus:

  • Varjatud plastikust ukseraam, mis on valmistatud seinavärviga (värvimisvõimalus)
  • Ukseleht paksusega 40 mm, täidetud “kärg” või täis-mdf plaadiga, kaetud cpl ökoloogilise laminaadiga
  • Kahes värvitoonis valik: valge või must
  • Kerge ja stabiilne raami konstruktsioon
  • Kahe varjatud hingedega AN 140 3D Anselmi firmalt Simonswerk
  • Magnetlukk Bonaiti kroom satiin
  • Hall või valge tihend, mis on sobitatud ukseraamiga
  • Võimalik ka Itaalia disainiga käepide lisada
  • STANDARDVALIK: UKSELEHE VÄLISSÜGAVUS. 2020/SEESMINE SÜGAVUS 2030 mm

 

Vaata ka teisi peidetud uksi meie e-poes.

Küsi paigaldus pakkumist tunnustatud firmalt.

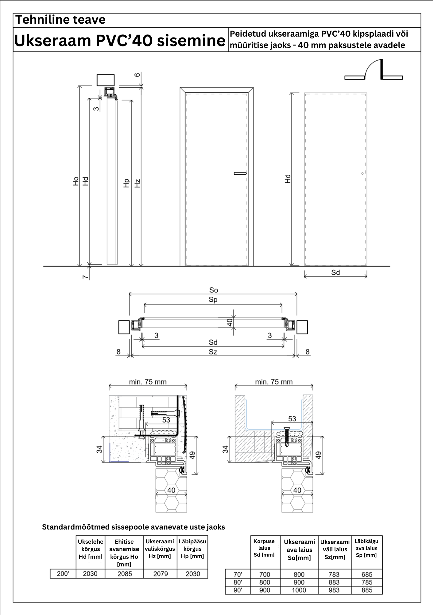
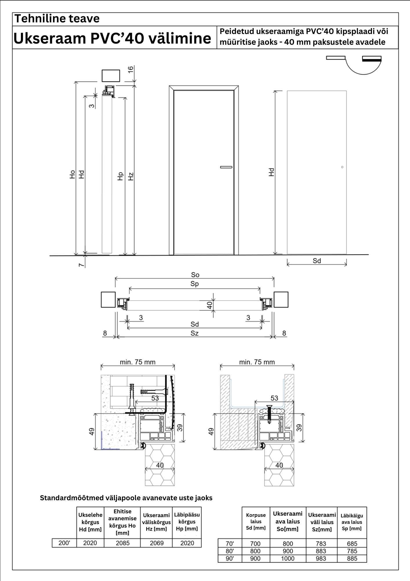
Paigaldusjuhend antud tootele:

Juhend sissepoole avamise jaoks

Juhend väljapoole avamise jaoks

Tellimisleht

Vorm Complete PVC’40

 

Täidke päringuvorm meie kodulehel ja meie võtame teiega ise ühendust.

Tuleme teile sobival ajal teie objektile ja teostama kõik vajalikud mõõtmised.

Teeme teile personaalse hinnapakkumise

Valmistame teie poolt soovitud ukse

Tarnime ning vajadusel paigaldame teiepoolt tellitud uksed.

Vaata ka teisi sama kategooria tooteid

PEIDETUD RAAMIGA UKS VALGE COMPLETE’40

al. 509.00 ei sis. KM

Peidetud raamiga uks Sara Plus Nuovo SPN D/SPN D TBL

Sara Mini SM

Kontakt

Küsi pakkumine